FECHA:
EQUIPO:
Joan Alomar
LOCALIZACIÓN:
Inca
AÑO:
2018

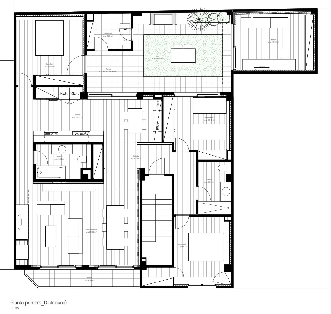
Ca na Joana i en Biel

En este proyecto, partimos de un piso existente sumido en compartimentos estrechos y con una entrada de luz natural limitada. Tras un minucioso análisis de las potencialidades presentes, determinamos que la vivienda debía experimentar una metamorfosis hacia espacios abiertos, conectados directamente con el patio exterior, para aprovechar al máximo la luz natural que fluye desde la calle.

Desde el inicio, nuestro enfoque principal durante la reforma fue concebir una vivienda que no solo se destacara por su estética, sino que también cumpliera con criterios de eficiencia energética y aprovechamiento óptimo de la luz y ventilación natural. Para alcanzar este objetivo, implementamos diversas estrategias y soluciones arquitectónicas que no solo reducen el consumo energético, sino que también crean ambientes luminosos y acogedores, dando vida a un espacio que no solo se vive, sino que se experimenta.

¿Quieres que le demos forma a tu proyecto?
¿Trabajamos juntos?